ПРОЕКТЫ ДОМОВ
Нива
Фасад 1 ![]() |
Фасад 2 |
Фасад 3 ![]() |
Фасад 4 ![]() |
| Технические данные | |
|---|---|
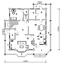
| Общая площадь дома | 300м2 |
| Жилая площадь | 150м2 |
| Площадь первого этажа | 140м2 |
| Площадь мансардного этажа | 160м2 |
| Площадь открытых веранд | 60м2 |
Эксплуатация

© ООО «ГОСТпол»
тел. +7 (495) 210-32-51, 210-62-09
info@gostpol.ru http://gostpol.ru
дизайн и разработка printstudio.ru










